SPLENDIDO APPARTAMENTO ULTIMO PIANO CENTRO VOGHERA
€ 265.000
Pavia
Dettagli
Contratto Vendita
Rif IMMO-111641005
Prezzo € 265.000
Provincia Pavia
Comune Voghera
Indirizzo Via Emilia 180">
Vani 3
Camere 2
Bagni 2
Classe energetica
F (DL 192/2005)
EPI 299.53 kwh/m2 anno
Piano 3 / 3
Riscaldamento centralizzato
Condizioni ottime condizioni
Spese condominiali € 180
Anno di costruzione 1965
Ascensore si
Cucina abitabile
Consistenze
| Descrizione | Superficie | Sup. comm. |
|---|---|---|
| Principali | ||
| Immobile - 3° piano | 140 Mq | 140 Mqc |
| Totale | 140 Mqc | |
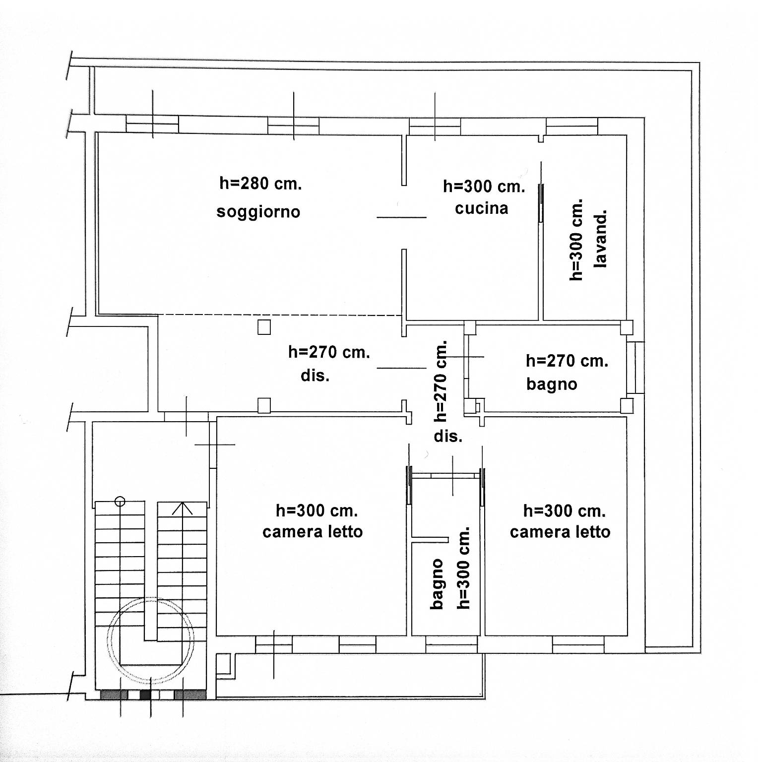
VOGHERA: Via Emilia, centro Voghera proponiamo splendido attico unico nel suo genere con finiture di pregio. Composto da ingresso su salone illuminato da eleganti faretti e dipinto del 600 a soffitto, balconata che circonda l'appartamento, cucina abitabile con dispensa/lavanderia, disimpegno che conduce alla zona notte composta da due camere da letto matrimoniali, due bagni finestrati con doccia e secondo balcone. Terrazza sul tetto dello stabile, cantina e posto auto libero nel cortile interno. L'appartamento si presenta in perfette condizioni interne, come nuovo! Dotato di serramenti con doppi vetri, zanzariere e tapparelle motorizzate in tutta la casa. Impianto d'allarme e aria condizionata Daikin canalizzata in tutti i locali. Porta blindata. Da non perdere! Si valuta anche affitto a riscatto con anticipo del 50%. - Tutti i dati e le informazioni contenute e indicate nel presente annuncio non costituiscono elemento contrattuale. - Per maggiori informazioni e appuntamenti Agenzia Universo Immobiliare di Voghera in Via Giuseppe Garibaldi 75.
Contattare Matteo 3333215270
Visitate il nostro sito internet www.megauniversoimmobiliare.com
EFFETTUIAMO VALUTAZIONI REALI E GRATUITE DEI VOSTRI IMMOBILI.
AGENZIA DI VOGHERA VIA GIUSEPPE GARIBALDI 75
RICERCHIAMO IMMOBILI DI VARIE TIPOLOGIE IN VENDITA O LOCAZIONE PER LA NOSTRA SELEZIONATA CLIENTELA
OFFRIAMO VALUTAZIONI GRATUITE E SENZA IMPEGNO
GARANTIAMO MASSIMA PROFESSIONALITÀ E RISERVATEZZA
COMPETENZE QUALIFICATE
CONTATTARE IL TITOLARE MERCALDO MATTEO 3333215270
Pagina facebook dedicata dell'agenzia di Voghera https://www.facebook.com/profile.php?id=100087948392976
Contattare Matteo 3333215270
Visitate il nostro sito internet www.megauniversoimmobiliare.com
EFFETTUIAMO VALUTAZIONI REALI E GRATUITE DEI VOSTRI IMMOBILI.
AGENZIA DI VOGHERA VIA GIUSEPPE GARIBALDI 75
RICERCHIAMO IMMOBILI DI VARIE TIPOLOGIE IN VENDITA O LOCAZIONE PER LA NOSTRA SELEZIONATA CLIENTELA
OFFRIAMO VALUTAZIONI GRATUITE E SENZA IMPEGNO
GARANTIAMO MASSIMA PROFESSIONALITÀ E RISERVATEZZA
COMPETENZE QUALIFICATE
CONTATTARE IL TITOLARE MERCALDO MATTEO 3333215270
Pagina facebook dedicata dell'agenzia di Voghera https://www.facebook.com/profile.php?id=100087948392976
Richiedi maggiori informazioni
Mappa
Zoom della mappa
Apri con:
Apple Maps
Google Maps
Waze
Contattaci
MEGA Universo Immobiliare
Via G.Guintellino(ang.Lodovico il Moro), 1 20143 MILANO (MI)
Via G.Guintellino(ang.Lodovico il Moro), 1 20143 MILANO (MI)
P.IVA: 11285770159
0289128464





